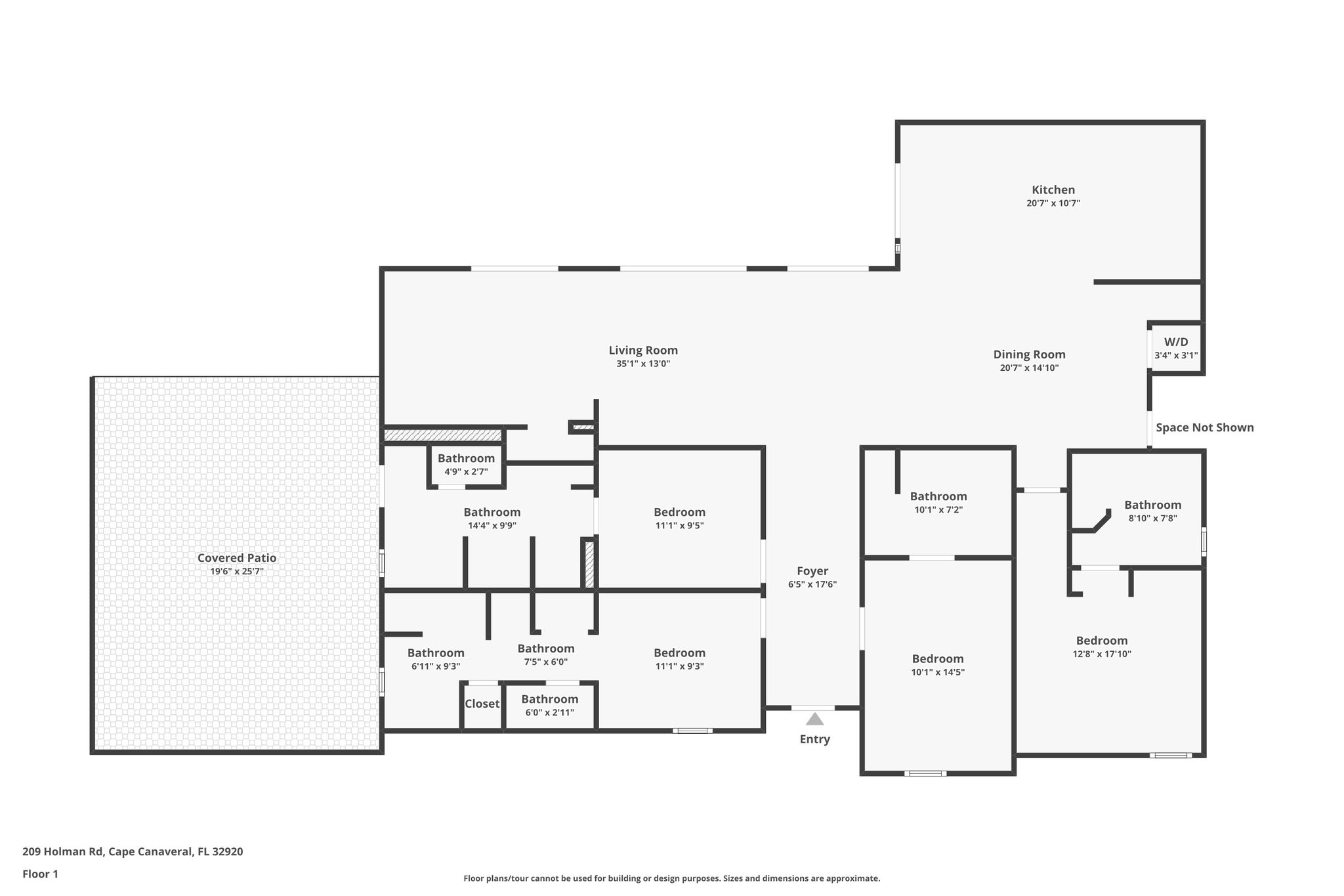
209 Holman Rd, Cape Canaveral, FL 32920
Toggle Navigation
Images
Videos
Floor Plans
3D Tour
Map
209 Holman Rd
Cape Canaveral, FL 32920
Scroll to Content
Images
Slideshow
Photo Grid
Hide
Previous
Next
Show more
Videos
209 Holman Rd, Cape Canaveral, FL 32920 (2)
209 Holman Rd, Cape Canaveral, FL 32920
Floor Plans
Slideshow
Photo Grid
Hide
Previous
Next
3D Tour